Skip to main content area
ЕЖЕДНЕВНО
с
9
00
до
21
00
ч.
Форма поиска
Поиск
торгово-развлекательный
комплекс
Главная
Информация
Новости
Акции и скидки
Галерея
План комплекса
Арендаторам
Контакты
Рестораны
и кафе
Спорт
Развлечения
Магазины
Бизнес-центр
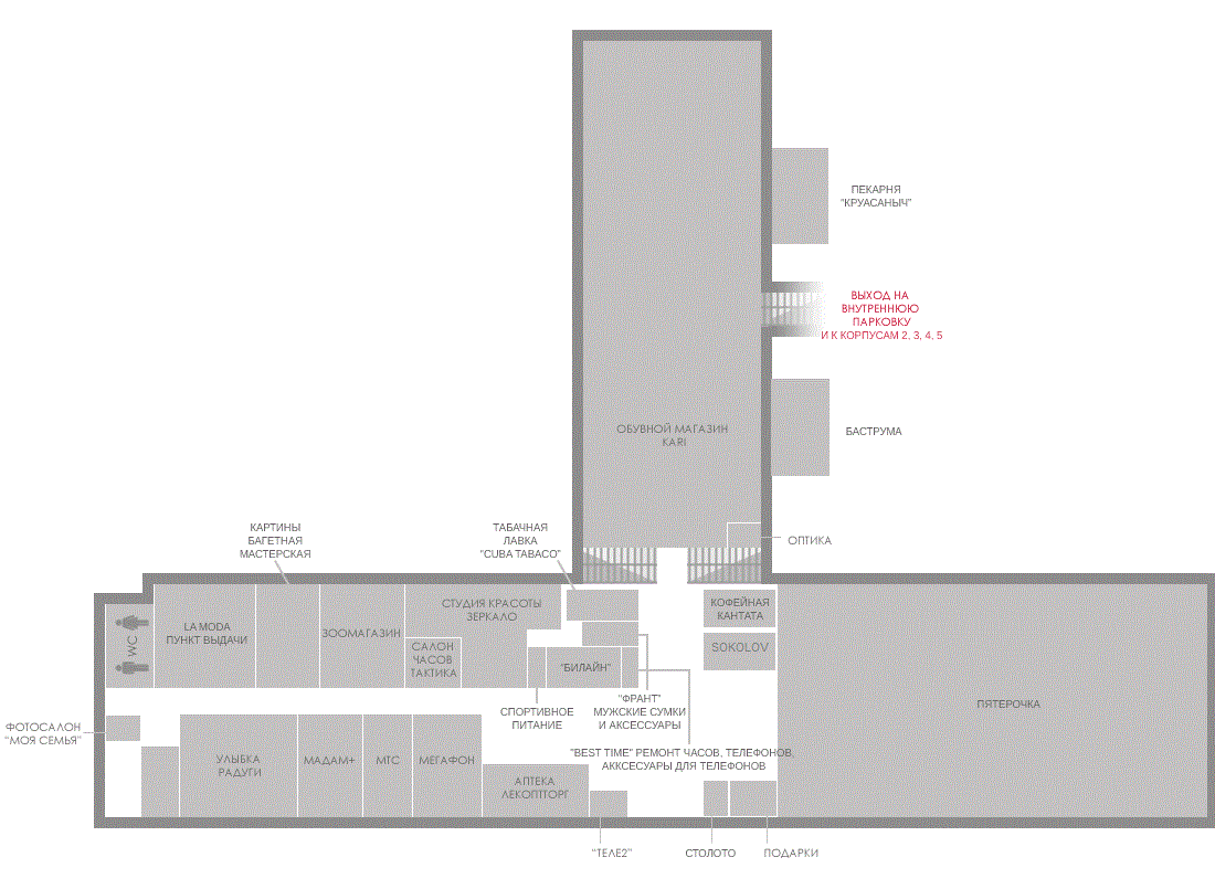
Корпус 1
Корпус 2
Корпус 3
Корпус 4
Корпус 5
Бизнес-центр
План 1 этажа 1 корпуса
1 этаж
2 этаж
3 этаж